找回密码
 加入我们
搜索
      
查看: 128|回复: 2

[案例分享(完工啦)] 一个大叔的养老归宿,杭州拱墅170+55湖景露台房的分享

[复制链接]
发表于 2025-11-12 17:16 | 显示全部楼层 |阅读模式
本帖最后由 小姜姜 于 2025-11-12 17:19 编辑

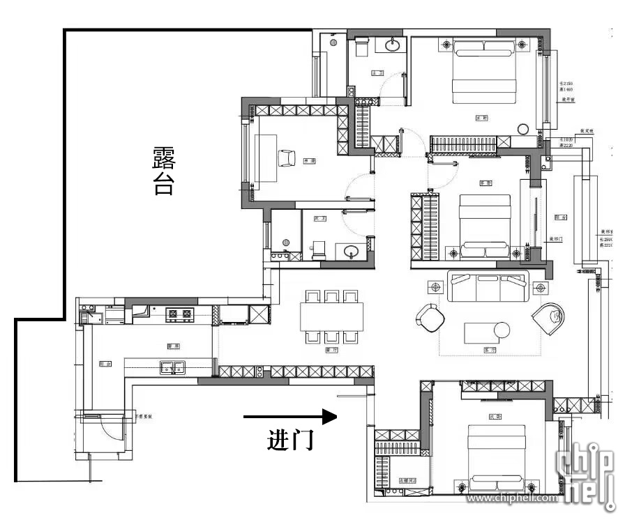
前言:小时候一直羡慕别人家里有院子,可以在院子里嬉闹玩耍,吹风养花,有自己的一片天地。人快到中年,终于实现这个梦了。
整体风格选择了原木风,给家里人有个松弛的环境。露台不太会设计,所以进行了简单的装修,露台外的湖景已经非常棒了,也就没必要再养很多花花草草了。
57689acaeeccd7594dba001ce77888b4.jpg

露台是北面

露台是北面

这露台的风景很满意了

这露台的风景很满意了
ZZ2.jpg
V1.jpg
V2.jpg
V3.jpg
V4.jpg
V5.jpg
v7.jpg
V8.jpg
V9.jpg
V10.jpg
640491fc37c2ab4cb2a7a252b54ddb21.jpg
f36771bac957d9713944a76888103d78.jpg

评分

参与人数 1邪恶指数 +10 收起 理由
Vampire_KILLer + 10 666

查看全部评分

发表于 2025-11-12 17:59 | 显示全部楼层
沙发,也是老登一枚。

已打算退休,不过要给爸妈养老先。
发表于 2025-11-12 22:27 | 显示全部楼层
装修风格很舒服啊!
您需要登录后才可以回帖 登录 | 加入我们

本版积分规则

Archiver|手机版|小黑屋|Chiphell ( 沪ICP备12027953号-5 )沪公网备310112100042806 上海市互联网违法与不良信息举报中心

GMT+8, 2025-11-13 00:37 , Processed in 0.008588 second(s), 6 queries , Gzip On, Redis On.

Powered by Discuz! X3.5 Licensed

© 2007-2024 Chiphell.com All rights reserved.

快速回复 返回顶部 返回列表