找回密码
 加入我们
搜索
      
查看: 727|回复: 2

[案例分享(完工啦)] 分享一个刚落地的项目,展厅+办公室

[复制链接]
发表于 2025-9-22 21:17 | 显示全部楼层 |阅读模式
业主自购的商业大平层,已有一半作为打板空间,剩下的这一半业主原本打算装修自主,最后还是决定作为品牌的展厅和办公场地。
P.00封面.jpg
P.01.jpg
P.02.jpg
P.03.jpg
P.04.jpg
P.05.jpg
P.06.jpg
P.07.jpg
P.08.jpg
P.09.jpg
P.10.jpg
P.11.jpg
P.12.jpg
P.13.jpg
P.14.jpg
P.15.jpg
P.16.jpg
P.17.jpg
P.18.jpg
P.19.jpg
P.20.jpg
P.21.jpg
P.22.jpg
P.23.jpg
P.24.jpg
P.25.jpg
P.26.jpg
P.27.jpg
P.28.jpg
P.29.jpg
P.30轴测图.jpg
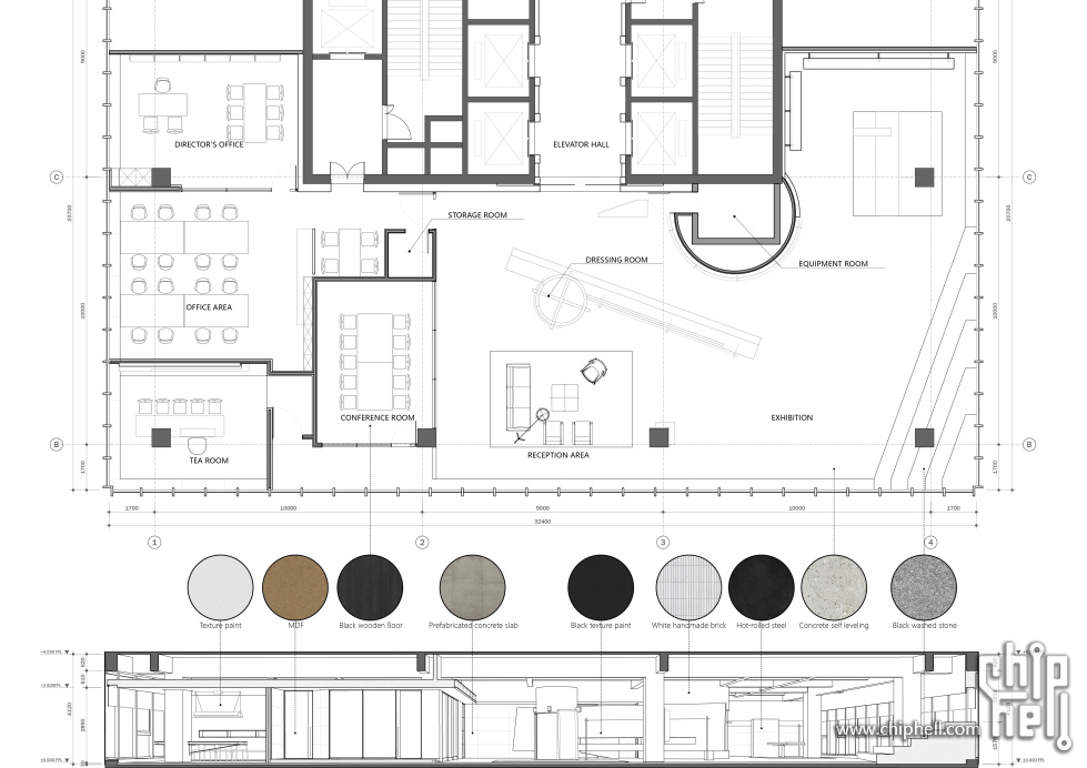
P.31平面 剖面.jpg
P.32家具设计.jpg

评分

参与人数 1邪恶指数 +60 收起 理由
xm79 + 60 666

查看全部评分

发表于 2025-9-26 16:13 | 显示全部楼层
很有风格,如果能在这种地方工作应该很棒
发表于 2025-9-22 21:32 | 显示全部楼层
场地就这么大,,,关键在装修,,,展厅弄好还是挺好看。。。
您需要登录后才可以回帖 登录 | 加入我们

本版积分规则

Archiver|手机版|小黑屋|Chiphell ( 沪ICP备12027953号-5 )沪公网备310112100042806 上海市互联网违法与不良信息举报中心

GMT+8, 2025-10-9 03:03 , Processed in 0.011340 second(s), 9 queries , Gzip On, Redis On.

Powered by Discuz! X3.5 Licensed

© 2007-2024 Chiphell.com All rights reserved.

快速回复 返回顶部 返回列表