找回密码
 加入我们
搜索
      
查看: 14999|回复: 173

[败家] 竹林深处的生命剧场|遂昌殡仪馆及人民医院建筑

  [复制链接]
发表于 2025-10-14 16:48 | 显示全部楼层 |阅读模式
其一.写在开头
丽水去了景宁、龙泉、青田,年初的龙泉菇神庙照片已被城市地理杂志征用,估计不久便会和大家见面
刚刚过去不久的国庆又一次前往龙泉拍摄,途径遂昌的时间,这期间反复在网路看到遂昌殡仪馆的帖子,
令人震撼的航拍图,当代的设计,清水混凝土的建筑,于是默默标记了定位。
未标题-1.jpg
↑网路刷到的航拍图,左侧图远景山上为公墓,前景为殡仪馆
这是我第二次来遂昌,驱车赶来是为了看一个灵魂的栖身之所。
国内是没有墓园文化的,倒也不是字面意思的没有,至少不会有人把墓园当公园,

当身边朋友问起我的旅行目的地,虽然不出意外又是丽水,不过这次变成了人民医院和殡仪馆。


这种不同,或许在于宗教,或许在于传统思想,在川西呆了半个月,藏区其实也有类似的观念,死亡是人最接近天堂的时候,墓地也一定更靠近天堂,中华文化一直有“事死如事生”的传统,日常生活会刻意回避这类讨论。传统观念里这里接着阴曹地府,不说近距离观看,至少不会有人专程来一趟。

这座位于浙江省遂昌县,由佚人营造和同济大学建筑设计研究院设计,
佚人营造的主持建筑师王灏形容其为“生命的剧场”。在这里,逝者、悲伤的亲属、参观者和工作人员共同构成一场关于生命终结与延续的多维叙事。不过作为民生工程,不出错远比有设计重要,能想象得到,我们喜欢看建筑的人,看得直呼过瘾,设计团队应该也能拿奖无数,但是对于建筑真正的使用者一定是怨声载道。

B站殡葬区的up主汤木檀泽,从事大众不会主动接触和了解的行业,。
提供一个不同的视角来分享与死亡文化相关的内容,让观众观察和思考,其实很不错。
就像遂昌人民医院,在我看来那是竹子的意向,但是本地人觉得那更像是棺材,而殡仪馆也会被解读为水泥盒子吧。
不过好在遂昌是个小县城,解读空间的问题,就交给时间。


_CTK8129.jpg
↑竹林深处的生命剧场
_CTK8119.jpg
↑10月的浙江,还是40度高温
_CTK8107-已增强-降噪.jpg
_CTK8108-已增强-降噪.jpg
_CTK8109-已增强-降噪.jpg
其二.关于拍摄
关于殡仪馆拍摄,国内外对于墓园的观点肯定是巨大的,在国内不要说殡仪馆了,你要是在墓地拿着相机,
多半是一种大不敬的姿势,所以对于拍摄而言,请一定尊重逝者,同时与殡仪馆的管理者有沟通的情况下,同时遵从当地风俗低调拍摄。
本文拍摄和文字,仅从建筑欣赏角度出发,如果我的观点和你有出入,不用怀疑一定是你对
本文拍摄和文字,仅从建筑欣赏角度出发,如果我的观点和你有出入,不用怀疑一定是你对
本文拍摄和文字,仅从建筑欣赏角度出发,如果我的观点和你有出入,不用怀疑一定是你对

拍摄器材:Nikon Z6  镜头:Nikkor 24-120mm F4S /Nikkor50mm 1.8s
_CTK8103.jpg
↑殡仪馆正门
_CTK8105-已增强-降噪.jpg
↑正门口建筑的天花板
_CTK8127.jpg
↑殡仪馆平面图
_CTK8120.jpg
_CTK8166-已增强-降噪.jpg
↑公共点香处
_CTK8122.jpg
_CTK8123-已增强-降噪.jpg
_CTK8126-已增强-降噪.jpg
↑前往屋顶花园的步道
_CTK8130-已增强-降噪.jpg
_CTK8135-已增强-降噪.jpg
_CTK8131-已增强-降噪.jpg
↑雨水收集器
_CTK8111-已增强-降噪.jpg
其三.关于设计
王灏(1978年出生)是同济大学建筑系学士、德国斯图加特大学工程硕士,国家一级注册建筑师。
2011年创立佚人营造建筑事务所,其设计实践聚焦传统木构技艺的现代表达与乡村建筑活化,
他于2020年获首届“自然建造·Architecture China Award”青年探索奖,该奖项由普利兹克奖得主王澍评审
2.jpg
代表作品:
库宅:正交十字拼接造型获德国《建筑世界》2013年度住宅类最高奖
砖宅:为母亲建造的住宅获《世界建筑》2013年度奖项
柯宅:突破传统农居范式,形成独特建筑风格
紫石粮仓改造(2024):将宁波北仑废弃粮仓改造成芯港小镇展示大厅,通过水系设计与架空结构实现历史建筑活化
天目湖方村(2023):在江苏溧阳打造当代水乡,以棋盘式水系串联5座现代廊桥,村口6层书塔成为精神地标
前童润舍:运用层叠木构专利技术,探索传统榫卯的现代表达
_CTK8136-已增强-降噪.jpg
↑苹果味十足,这个建筑最喜欢的一个视角

_CTK8139-已增强-降噪.jpg

_CTK8140-已增强-降噪.jpg
↑公共休息处天顶的处理,建筑大部分房顶都是这个设计
_CTK8146-已增强-降噪.jpg
↑来告别的亲属在公共休息处
_CTK8147-已增强-降噪 拷贝.jpg
↑告别厅门口的光影
_CTK8149-已增强-降噪.jpg
↑转角处的雨水收集器
_CTK8156-已增强-降噪.jpg
↑身后事暖心办
_CTK8151-已增强-降噪.jpg
↑殡仪馆指路牌
_CTK8164-已增强-降噪.jpg
↑镜头不够广,未能拍摄到天顶,稍后附上一张爪机拍的
4.jpg
↑来自17pro超广角
_CTK8148-已增强-降噪.jpg
_CTK8173-已增强-降噪.jpg
_CTK8176.jpg
_CTK8177.jpg
↑二楼的烟囱,来自一楼公共点香处,可以看见灰烬在阳光里翻飞
_CTK8180-已增强-降噪.jpg
↑遵从管理条例没有拍摄内部,这里贴一张网路上找到的内部图
5.jpg
其四.有设计的墓地

看完殡仪馆,本想找找有没有制高点可以拍摄一下殡仪馆的全景,结果来到了后山的墓地,
公墓依山而建,对山体的硬化处理,动线规划很合理,
不过我在某书发图时,有当地人留言,墓葬用品规格和传统墓地有许多不吻合的问题。
_CTK8194.jpg
_CTK8193.jpg
↑山顶小屋,和殡仪馆一样的设计元素
_CTK8185-已增强-降噪.jpg
↑水池泛涟漪倒影在天顶
_CTK8186-已增强-降噪.jpg
_CTK8191.jpg
_CTK8196.jpg
_CTK8197.jpg
↑拍摄的时候没注意,整理照片感觉楼梯是有倾角的
_CTK8198.jpg
_CTK8199.jpg
↑坚定的无神论者,逛墓地没有任何不适,希望看帖的你们也一样
_CTK8200.jpg
_CTK8201.jpg
_CTK8205.jpg
↑碑刻区
_CTK8206.jpg
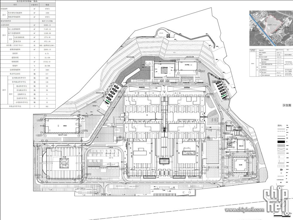
其五.遂昌人民医院
3.jpg
↑来自政府公开网医院的平面图
在殡仪馆和管理者聊天,也了解到一些施工方的问题,大概就是施工工艺不能很好得满足设计,
后续去的遂昌人民医院,来自殡仪馆管理者的推荐,医院施工方因为不能满足清水混凝土的工艺,采用了涂料立面,缺少了那种震撼感,网上能找到关于医院的贴子不多,但是全都是素雅的清水混凝土里面,而我拍摄时,主体建筑处在一个完工的状态,已经是有了涂料。
当然关于遂昌人民医院,因为还未投入使用,所以关于他的文章和资料真的少之又少,发在某书评论区一片哗然,
拍摄的时候我第一反应式竹子的意境,事后看评论指责全在说棺材顶,的确
作为民生工程,不出错远比有设计重要。
尽管有人说我是在硬夸,作为一个中立的拍摄者,我还是那句话,解读空间的问题,就交给时间。

由于医院没有正式投入使用,没能找到正确定位,根据殡仪馆管理者的模糊描述找了好久,不仅去了老医院,

还不小心拐上了528省道开出去十几公里,结果发现就在去殡仪馆那条路的隧道另外一侧,运气非常好跟着施工车辆进入
出来才发现,想进去其实是一件非常困难的事情

_CTK8212.jpg
↑对面是个刚刚开盘的楼盘,原本想去小区楼顶拍个俯瞰,不过被保安拦住了
_CTK8217.jpg
↑关注点在雨水收集器,这个设计师特别喜欢这样的设计,建筑中多次出现
_CTK8219.jpg
_CTK8221.jpg
↑巨型雨水收集器
_CTK8222.jpg
↑主楼侧面,很多人解读为棺材顶,我觉得这是竹子的意向和意境
_CTK8224.jpg
_CTK8227.jpg
↑从综合楼往主楼看过去
_CTK8231.jpg
_CTK8235-已增强-降噪.jpg
↑字体和UI的设计
_CTK8238.jpg
_CTK8239.jpg
_CTK8240.jpg
_CTK8285.jpg
_CTK8241.jpg
↑医护通道和主楼的连接处,同时也是巨型雨水接收器的通路
_CTK8242.jpg
↑门诊通道
_CTK8243-已增强-降噪.jpg
↑种植了大量迷迭香,味道很舒服
_CTK8244-已增强-降噪.jpg
↑四通八达的连廊,不过很窄
_CTK8245-已增强-降噪.jpg
_CTK8246-已增强-降噪.jpg
↑通往医护通道,未投入使用,所以都能走通
_CTK8250-已增强-降噪.jpg
↑很喜欢这个连廊
_CTK8253.jpg
↑公共平台,可以想象如果是清水混凝土立面会是怎样的震撼和素雅
_CTK8255.jpg
_CTK8257-已增强-降噪.jpg
↑医院正面的中厅,下面是西药房和中药房
_CTK8258-已增强-降噪.jpg
↑楼层指引图
_CTK8262 拷贝.jpg
↑医院中厅的巨型雨水收集器和蓄水池,下雨天应该是很棒的景色
_CTK8263.jpg
_CTK8264.jpg
↑中庭,竹子或者瓦片的联想,当然一定会有错误解读
_CTK8265-已增强-降噪.jpg
_CTK8267.jpg
_CTK8269.jpg
↑从停车场看建筑主体
_CTK8268.jpg
↑最早在网路看到关于人民医院的建筑是停车场
_CTK8270.jpg
↑最早拿这个做的某书主图,我自己没意识到会被解读成棺材
_CTK8271 拷贝.jpg
_CTK8272.jpg
↑停车场中庭
_CTK8273.jpg
↑停车场中庭回望屋顶
_CTK8274.jpg
↑纯天然的引导线,是混凝土上的刻痕
_CTK8275.jpg
_CTK8276.jpg
↑楼梯内侧居然还有一条隐藏的连廊,走楼梯的时候没注意到,拍摄建筑主体后重新上楼拍摄的
_CTK8277.jpg
↑发热门诊做成了红色灯珠
_CTK8215.jpg
奇怪的鱼鳞纹建筑,进入内部才发现,原来白色的构建正式楼的隔层,没有标识用途,不过我猜这个大概是vvvvip病房
非传统的立面,是这一程最不喜欢的建筑,有点为了设计而设计,特别是作为医院的建筑,卫生死角一看就非常多
_CTK8286.jpg
_CTK8282-已增强-降噪.jpg
非传统的立面,一看卫生死角就很多
_CTK8284-已增强-降噪.jpg
其六.写在最后
_CTK8288-已增强-降噪.jpg
事实证明,我对看建筑有特别的执念,并且不受建筑用途或者传统观念束缚的,

在我们想去却没敢去的地方,面对我们想见却可能没机会见到的人,纪实摄影在每一个决定性时刻,隐身于相机背后的每一次深思。
淡化网红感,淡化贵价镜头、相机的限制,回归纪录本身,
比打卡某个地标建筑更有趣的事情,其实就是过程本身,我们又看到了哪些不一样的景色,留下了哪些不一样的感触,
最后感谢大家又一次看完我的超超超长文,这杯dirty我干了你们随意,当然川西的帖子会继续更





评分

参与人数 17邪恶指数 +285 门户文章 +1 收起 理由
wangpr0606 + 5
rockcheung117 + 20 支持一下
mactang + 10
nvidiadriver + 20
sunjun5 + 40
zrex + 10
249115711 + 20
dukeiii + 10
谁都想的到 + 20 就是NB
ebeshow + 60 非常赞同
xavier_cx + 10 就是NB
红领巾 + 10
胖子爱宅 + 20
克肉揉 + 20
脐橙 + 5 大佬的帖子真的不错
nApoleon + 1
Wolverine + 5

查看全部评分

发表于 2025-10-14 17:00 来自手机 | 显示全部楼层
肃穆的地方!!

评分

参与人数 1邪恶指数 +5 收起 理由
TinkerCafe + 5

查看全部评分

发表于 2025-10-14 17:54 | 显示全部楼层
对于殡仪馆的作品我还真是第一次见。年到中年,不免也会想到自己生死问题。几年前签了遗体捐献,希望我走的那一天,家人能支持我的决定,最终让我的遗体留作医学研究。

评分

参与人数 5邪恶指数 +48 收起 理由
sunjun5 + 8
sonic8411 + 20 支持一下
雅蠛蝶 + 5 支持一下
寒风吹雪 + 10 支持一下
TinkerCafe + 5

查看全部评分

发表于 2025-10-14 20:22 | 显示全部楼层
很特别的题材

评分

参与人数 1邪恶指数 +5 收起 理由
TinkerCafe + 5

查看全部评分

发表于 2025-10-14 20:38 | 显示全部楼层
医院的设计不错

评分

参与人数 1邪恶指数 +5 收起 理由
TinkerCafe + 5

查看全部评分

发表于 2025-10-14 21:14 | 显示全部楼层
好的设计环境,也许会温暖悲伤的心情,也是对逝者的人文关怀,设计者有心了

评分

参与人数 1邪恶指数 +5 收起 理由
TinkerCafe + 5

查看全部评分

发表于 2025-10-14 21:51 | 显示全部楼层
感谢分享!~

评分

参与人数 1邪恶指数 +5 收起 理由
TinkerCafe + 5

查看全部评分

发表于 2025-10-15 00:16 | 显示全部楼层
本帖最后由 shalei2004 于 2025-10-15 00:19 编辑

医院的设计一言难尽,如果是民营医院,老板喜欢就好,如果是公立医院,感觉有点超前了

整体设计风格不像是救死扶伤的地方,如果作为临终关怀医院或者高端养老院,可能更适合一些

评分

参与人数 1邪恶指数 +5 收起 理由
TinkerCafe + 5

查看全部评分

 楼主| 发表于 2025-10-15 05:40 | 显示全部楼层
shalei2004 发表于 2025-10-15 00:16
医院的设计一言难尽,如果是民营医院,老板喜欢就好,如果是公立医院,感觉有点超前了

整体设计风格不像是 ...

感谢你的评论哦
 楼主| 发表于 2025-10-15 05:44 | 显示全部楼层
要买放心肉 发表于 2025-10-14 17:54
对于殡仪馆的作品我还真是第一次见。年到中年,不免也会想到自己生死问题。几年前签了遗体捐献,希望我走的 ...

正因为是小众赛道,所以显得意义非凡,
国内应该属于独一家了,网路能找到的资料,
做对比的,全是欧美墓地,类似于意大利耶斯墓园,圣卡塔尔多公墓,《沙丘2》中皇宫的取景地布里昂墓园
发表于 2025-10-15 08:25 | 显示全部楼层
这个殡仪馆的设计太出人意料了,和我传统观念上的有好大差别啊,也可能是作品调色的原因,看上去更像是,艺术馆?

评分

参与人数 1邪恶指数 +5 收起 理由
TinkerCafe + 5

查看全部评分

发表于 2025-10-15 08:57 | 显示全部楼层
感谢分享,这是国内第一家设计感那么好的殡仪馆吗?
让我想起来已逝亲人的情景,快十年了。

评分

参与人数 1邪恶指数 +5 收起 理由
TinkerCafe + 5

查看全部评分

发表于 2025-10-15 09:03 | 显示全部楼层
这也太超前了吧,有种冰冷肃杀之美

评分

参与人数 1邪恶指数 +5 收起 理由
TinkerCafe + 5

查看全部评分

发表于 2025-10-15 09:08 | 显示全部楼层
在当下的建筑设计语境之下,还能有这么多个性化的符号表达,真是一件特别了不起的事啊!虽然有一些借鉴大师元素的影子,但两个作品整体表现还是颇为完整!感谢分享!

评分

参与人数 1邪恶指数 +5 收起 理由
TinkerCafe + 5

查看全部评分

发表于 2025-10-15 09:09 | 显示全部楼层
普通人估计很难接受这种设计理念,不过真的很应景,很肃杀

评分

参与人数 1邪恶指数 +5 收起 理由
TinkerCafe + 5

查看全部评分

 楼主| 发表于 2025-10-15 09:14 | 显示全部楼层
言为若生 发表于 2025-10-15 08:25
这个殡仪馆的设计太出人意料了,和我传统观念上的有好大差别啊,也可能是作品调色的原因,看上去更像是,艺 ...

实物也确实如此,手机拍摄一样震撼,营造的氛围很不错
 楼主| 发表于 2025-10-15 09:14 | 显示全部楼层
安124机长3 发表于 2025-10-15 09:09
普通人估计很难接受这种设计理念,不过真的很应景,很肃杀

发到小某书,本地人反应确实很大
发表于 2025-10-15 09:15 | 显示全部楼层
这是废弃的还是准备建设的?

评分

参与人数 1邪恶指数 +5 收起 理由
TinkerCafe + 5

查看全部评分

 楼主| 发表于 2025-10-15 09:15 | 显示全部楼层
icefish7 发表于 2025-10-15 09:15
这是废弃的还是准备建设的?

殡仪馆8月投入使用,医院主体建筑完成,还未投入使用
发表于 2025-10-15 09:23 来自手机 | 显示全部楼层
真好,感谢楼主的分享,发自内心的。
国内从普遍认知上,确实对于墓园有一些回避。但墓园实际上是城市中难得的闹中取静的地方,即便园外各种喧嚣,园内一定是清幽寂静的。和楼主一样,我也是坚定的无神论者,所以单纯把墓园视作缅怀先辈的场所。因为我家离八宝山很近,所以经常去那边散心,偶尔拿两束花放在徐悲鸿、闻一多等先辈的墓前,感觉十分暖心。

评分

参与人数 1邪恶指数 +5 收起 理由
TinkerCafe + 5

查看全部评分

发表于 2025-10-15 09:23 | 显示全部楼层
感觉在美学层面确实是遥遥领先了

评分

参与人数 1邪恶指数 +5 收起 理由
TinkerCafe + 5

查看全部评分

 楼主| 发表于 2025-10-15 09:32 | 显示全部楼层
SKTelecomT1 发表于 2025-10-15 09:23
真好,感谢楼主的分享,发自内心的。
国内从普遍认知上,确实对于墓园有一些回避。但墓园实际上是城市中难 ...

丽水山多竹子多,不是茶山就是竹子山,群山环绕,听风声吹过竹林意境很足
整个墓地的动线设计的很好,是让人能好好逛的一个殡仪馆
发表于 2025-10-15 09:38 | 显示全部楼层
这个主题沉重了些...

评分

参与人数 1邪恶指数 +5 收起 理由
TinkerCafe + 5

查看全部评分

发表于 2025-10-15 09:56 | 显示全部楼层
这些设计真是牛啊 , 感谢分享  

评分

参与人数 1邪恶指数 +5 收起 理由
TinkerCafe + 5

查看全部评分

发表于 2025-10-15 10:09 | 显示全部楼层
好有设计感,感谢分享!

评分

参与人数 1邪恶指数 +5 收起 理由
TinkerCafe + 5

查看全部评分

发表于 2025-10-15 10:13 | 显示全部楼层
前土木行业从业者表示,这是设计师的伟大作品、建设单位的经费燃烧炉、监理单位和施工单位的噩梦。殡仪馆的施工效果非常好了,能做到这样施工单位真的付出了很大的心血。医院的体量和功能性摆在那,想做清水难度确实是太大了,我都不敢想负责结构和医疗设备的专业负责人得头秃成啥样

评分

参与人数 2邪恶指数 +15 收起 理由
dukeiii + 10
TinkerCafe + 5

查看全部评分

发表于 2025-10-15 10:14 | 显示全部楼层
第一次接触这类题材,意外加震撼!

评分

参与人数 1邪恶指数 +5 收起 理由
TinkerCafe + 5

查看全部评分

发表于 2025-10-15 10:15 | 显示全部楼层
肃目如寒潭映月,敛尽浮华,只余天地清寂。

评分

参与人数 1邪恶指数 +5 收起 理由
TinkerCafe + 5

查看全部评分

发表于 2025-10-15 10:15 | 显示全部楼层
那个殡仪馆设计有点东西的,第一反应就是肃然起敬

评分

参与人数 1邪恶指数 +5 收起 理由
TinkerCafe + 5

查看全部评分

发表于 2025-10-15 10:16 | 显示全部楼层
反差和割裂感非常强,想多呆又不敢多呆的地方,佩服设计,佩服审核,佩服甲方,这个项目从设计到落地,顶着的多大压力可想而知!

评分

参与人数 1邪恶指数 +5 收起 理由
TinkerCafe + 5

查看全部评分

您需要登录后才可以回帖 登录 | 加入我们

本版积分规则

Archiver|手机版|小黑屋|Chiphell ( 沪ICP备12027953号-5 )沪公网备310112100042806 上海市互联网违法与不良信息举报中心

GMT+8, 2025-12-10 21:50 , Processed in 0.018839 second(s), 8 queries , Gzip On, Redis On.

Powered by Discuz! X3.5 Licensed

© 2007-2024 Chiphell.com All rights reserved.

快速回复 返回顶部 返回列表