找回密码
 加入我们
搜索
      
查看: 18914|回复: 72

[案例分享(完工啦)] 分享一个今年上半年落地的柚木自然系住宅

  [复制链接]
发表于 2025-10-14 17:33 | 显示全部楼层 |阅读模式
本帖最后由 zxc08caup 于 2025-10-14 17:33 编辑

前言:小弟以前看chiphell是每日功课了,也写过一些小帖子。后来作建筑设计工作忙了就没时间来学习了。机缘巧合最近发现我们论坛的家居区质量非常之高,借着这个契机,也来分享一下我们最近落地的一些室内设计~

在客厅沙发处看餐厅空间

在客厅沙发处看餐厅空间

这一套房子位于上海闵行,套内100出头。
业主是做游戏开发的90后小哥,年轻有为,年纪轻轻已经是大型游戏公司的核心成员。
居家加班是常态,需要同时满足好的居住环境和办公配置,他希望这个家能够让他完全的放松舒适,并且在关键时刻可以用公司内线来远程办公。
当然,偶尔满足一下朋友或者亲人过来居住的需求也是有的。
不得不说改动还是挺大胆的,第一稿完成后小哥就选择了这个方向,细化之后马上就定稿,非常迅速。
两个设计关键词:“开敞的空间”与“松弛的环境”。
000平面.jpg
原来的房子是典型的三房飞机户型(左图)上海地区很多年以来都是这种户型,虽然维护的不错,但格局狭小。
尤其是卫生间这块,马桶间是暗卫(左图中间部位),淋浴房又十分狭长。卫生间旁的小房间也是鸡肋,只有5平米,放下一张床后几乎什么都干不了。
如果接近千万买来的房子直接住进去就有点难受,所以还是决定大刀阔斧改动。
原始居住条件.jpg
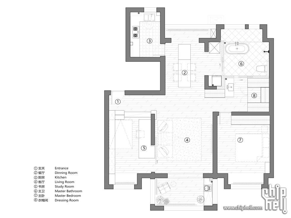
下图是改造后的平面图
平面图.jpg
玄关
002-玄关.jpg
玄关部分空间不大,但是光线和收纳要做足,进门就能看到顶天立地的柚木组合柜体,同时能够穿过空隙看到书房的情况(一个人住真的香)。
△上图左侧就是玄关柜的分布情况,开架收纳两侧都能拿取的物品,比如有一些工作的硬盘和文档;带柜门的部分收纳玄关物品,角落里的高柜是鞋柜,里面藏着强弱电箱。
△上图右侧是站在入口处看向房间内的情况,只要走过玄关这部分,就会豁然开朗,明亮而自然;下班归家的意义就在于此。
书房
003-书房.jpg
靠近玄关的小卧室改为与客厅相通的半开放书房,(书房柜体内隐藏着一张墨菲床,需要时可作为临时客卧)
△左图是坐在书桌前看窗外的感觉,这套房屋空调新风地暖全部齐备,书房窗户直接做了非开启扇,只留了一圈窄窄的边框,正好看到外面的树冠。自然感满满
△右图就是柚木的悬挑长桌,整个桌子长度在2m6,图里显示器是27寸,平时会放置一台台机一台笔记本,游戏办公两不误。同时可以看到玄关的天地架。
书房书桌里面藏着电源点位,以及多路网线,在设计之初就考虑到了一部分理线的需求,当然,并没有需要极致理线,只要能把堆积的线材放在书桌后面的盒子里即可。

客厅/起居室
书房和客厅靠一扇1米8宽的柚木移门相连,平时移门是打开的,变成了沙发的背景。在有朋友来的时候,小哥会自己住在书房里,这时候大移门关上就好了。
001-移门.jpg
△左图为打开状态,移门的柚木线脚变成沙发后的装饰,同时穿过门洞可以看到悬挑的书桌,以及远处的书架。
△右图为移门半开的状态,1米8宽度的移门是整个施工过程的难点,上面的预埋吊轨都是安装在梁上的,如果大家感兴趣我们以后开楼层分享施工过程哈。
当然受限于原始房屋的结构,只能开门洞1m8,如果这片墙不是剪力墙的话,这个空间的形态会更不同一点。
005-客厅沙发墙和电视墙.jpg
△再看一下从书房出来看到客厅的样子,以及从客厅去书房的路线。
banner-客厅.jpg
△客厅视角,客厅的面宽属于适中的宽度,4m。这个距离看85寸电视稍微有点小,不过已经足够舒适了。起居空间有坐深极深的沙发(我们觉得稍微大了一点,但他舒服啊),一张土耳其手工编织地毯,这个是真的好我也在考虑买一块;电视机柜是成品金属柜。

从客厅往前走就来到
阳台
011-阳台.jpg
△阳台是花草和休闲看书的地方,大窗口连接室内外的绿色,外面的树冠和屋内的盆栽。
阳台半高柜是黑色板岩台面,防水性能很好。柜下嵌入了追觅的扫地机器人,也是黑色,很无感。
可能照片没拍到的是单人伊姆斯椅旁边还有一个小小的吊灯,晚上氛围感极好。

餐厅
banner-餐厅2.jpg
房屋到餐厅部分有一定的收缩,面宽只剩下2m5,为了保持松弛的感觉,我们在餐厅部分只做了长桌和一个小岛台。
右侧柚木的体块其实是一个收纳核心,打开以后可以放行李箱和日用品。收纳空间充足。
009-餐厅.jpg
△餐厅的思路也是一样,和自然相呼应。左图看到外面的树冠
△右图是我们同事出镜当模特,给大家一个尺度参考,背靠柚木体块,看着窗外的树冠,很惬意。
008-餐厅.jpg
△专门挑了一块柚木大板做餐桌。
岛台不大,但可以做一些操作台补充。而且岛台是抽屉形式的,可以收纳非常多用餐物品。

厨房
004-厨房.jpg
△厨房是完全独立的小厨房,但小哥说不需要门,毕竟做饭不多大部分也就是热热菜,油烟没问题。
烟机灶具都是林内不锈钢款,和不锈钢台面非常搭。而且实心不锈钢台面,可以和水槽完全焊接在一起,非常好打理。
同样,厨房橱柜也是柚木实木贴皮的,以抽屉为主,使用起来很舒服。
厨房和原始房屋的区别主要在于吊柜还有装饰瓷砖,吊柜只做了一小个区域,用来藏燃气表;手工砖他非常喜欢,因为厨房窗户还是相对较小,增添一点手工气息的绿色装饰砖,心情会很好。


主卧
012-卧室.jpg
△主卧的床头部分是我们最爱的一个区域
因为业主小哥一开始的目的就是有一个可以放松下来好好休息的家,而且本身就非常喜欢自然的元素,那么这个柚木的床头以及窗框,给了他最好的睡眠居住体验。
而且为了不显得过于硬挺,我们在木框架内,贴了厚实的艺术壁布,壁布是吉祥松的纹样,色彩温暖淡雅,而且材料也比较厚实,配合artimide的壁灯,更加有质感。
不知道大家有没有看到这个开关,黑框白按钮,其实是lipro的一个装饰性的开关,放在这里一点也不违和,小哥很喜欢。
014-衣帽间.jpg
△床旁边的衣柜,我们选择了和墙面颜色一致的暖白烤漆。因为床头那边的木色已经够多了,平衡一下房间的色彩比例。
衣柜的开门是折叠对开,这样打开以后里面是一个大空间,壁挂衣架能够更方便的挑选衣物。一个人常用的衣物放在这里绰绰有余。
其他换季的衣物我们还有一个衣帽间可以放置。

衣帽间
015-衣帽间.jpg
△衣帽间其实是在以前户型洗手台的位置,我们通过压缩走廊和调整墙体位置,让这个地方变成了三面衣架的衣帽间。
壁挂架可以挂上所有换季的衣服。因为里面地面和外面是完全齐平的,还能收纳一些小电器,比如空气净化器,不用的时候直接推进来就行了。
衣帽间顶上正好是我们的新风机位置,新风机本身极大,放在这里也方便检修。
接下来是我们这个项目的重头戏

卫生间
banner-浴缸.jpg
013-洄游动线.jpg
△将小卧室拆除并入卫生间,形成宽敞的二分离浴室包含了洗手台,马桶间,淋浴间以及浴缸。
随着两扇移门的开启可以在空间中打造出一条洄游动线。
007-卫浴.jpg
△左侧是淋浴间和浴缸,电热毛巾架。
△右侧是洗手台,悬挑的抽屉柜。开敞,方便使用。
色彩也和厨房有所区别,选择了更深一点的蓝色马赛克。
006-一些光影斑驳.jpg
△这是我们在拍落地照其间看到的,虽说是北向的房间,但稍微偏西,阳光在下午5点左右正好洒进来。

到此,整个房屋的各个空间都已经分享出来了,我们的业主在里面住了大概3个月多了,很舒服。也希望他的工作因为舒适的生活蒸蒸日上~~
下面两张图也是我很喜欢的东西,在厨房的摩卡壶,以及在书房的真力G1。
010-物品.jpg
以上就是这个柚木自然系独居住宅的分享~~









评分

参与人数 9邪恶指数 +275 门户文章 +1 收起 理由
switchpusher + 40 支持一下
烤馍锅巴 + 20
seul4u + 80
chlxleda + 10
lazyvet + 5
goldengold + 20
ptbalan223 + 20
nApoleon + 1
xm79 + 80 就是NB

查看全部评分

发表于 2025-10-15 09:42 来自手机 | 显示全部楼层
是盘达老师吗?b站看到动态了。
发表于 2025-10-15 16:12 | 显示全部楼层
厉害,卫生间和厨房空间有限,都能给安排浴缸和那么多橱柜。
发表于 2025-10-26 09:43 | 显示全部楼层
三房改一房还是爽啊
发表于 2025-10-26 10:32 | 显示全部楼层
老房子改造下 相当舒服
发表于 2025-10-26 11:31 来自手机 | 显示全部楼层
好看,柚木就是质感好,造价应该不便宜呀
发表于 2025-10-26 11:50 | 显示全部楼层
光柚木就造价不菲了吧,这年头实木好贵
发表于 2025-10-26 13:18 | 显示全部楼层
很有品位,但是有一些风格太有年代感了,不像这个时代的设计
发表于 2025-10-26 14:53 | 显示全部楼层
可以 不错的
发表于 2025-10-26 15:01 | 显示全部楼层
这要是都是柚木去做成本不低啊,柚木贴片行不行
发表于 2025-10-26 16:23 | 显示全部楼层
qq278615958 发表于 2025-10-26 15:01
这要是都是柚木去做成本不低啊,柚木贴片行不行

墙面应该是柚木实木木皮的吧   
家具用18的直拼板的话,木材就得1000出头,加上人工的话,柜子按投影面积算没有5K落地是下不来的。
发表于 2025-10-26 17:03 | 显示全部楼层
jccy 发表于 2025-10-15 09:42
是盘达老师吗?b站看到动态了。

盘达老师他们公司设计的?
发表于 2025-10-26 17:19 | 显示全部楼层
柚木的质感真的无可挑剔,每一个功能区都尽可能做到舒适,对于喜欢原木+中古混搭风格来说,这应该是梦中情屋了吧
发表于 2025-10-26 17:55 | 显示全部楼层
一个人住就是爽,是我的话,还会考虑把客厅和书房对调了,沙发电视就摆设,男生会有这种需求么?
美中不足的是,厨房没做高低台和前挡水条,隐藏收纳空间不多,卫生间圆浴缸不能靠边和台上盆会有卫生死角。
发表于 2025-10-26 18:45 | 显示全部楼层
柚木和地板墙面以及家具软装配合得非常和谐,居住在里面,一定非常幸福。

唯一感觉遗憾的,是书房是开放的,距离入户门太近又太近,电脑屏幕是对着大门的。好像总有一种不安全感。
发表于 2025-10-26 18:45 | 显示全部楼层
看到马桶移位,就担心会不会堵而且这个案例的距离也不短,貌似要两米多了
发表于 2025-10-26 19:16 | 显示全部楼层
这个户型优化的真心好啊!
发表于 2025-10-26 19:18 | 显示全部楼层
dawnerpan 发表于 2025-10-26 18:45
看到马桶移位,就担心会不会堵而且这个案例的距离也不短,貌似要两米多了 ...

我家的马桶也移位了1m多,用了五年,没有任何不通畅。
发表于 2025-10-26 19:40 来自手机 | 显示全部楼层
三室改一室也太奢侈了吧,不敢想
发表于 2025-10-26 20:05 | 显示全部楼层
nilvalue 发表于 2025-10-26 17:55
一个人住就是爽,是我的话,还会考虑把客厅和书房对调了,沙发电视就摆设,男生会有这种需求么?
美中不足 ...

面宽不一样,那个书房做不了客厅
发表于 2025-10-26 20:27 | 显示全部楼层
请教下,餐桌宽度多少?我们餐厅面宽差不多,正愁餐桌宽度。
发表于 2025-10-26 21:15 | 显示全部楼层
x 是我喜欢的风格~
发表于 2025-10-27 09:49 | 显示全部楼层
图好像加载不了了
发表于 2025-10-27 10:16 | 显示全部楼层
同是做游戏,
发表于 2025-10-27 10:46 | 显示全部楼层
真爽,就是木色用浅色的会显得明亮些
发表于 2025-10-27 11:58 | 显示全部楼层
柚木真的好有质感。
发表于 2025-10-27 13:01 | 显示全部楼层
柚木真的好有质感。
发表于 2025-10-27 13:16 | 显示全部楼层
有个问题问下楼主,柚木原木桌板用段时间会翻翘吗?
发表于 2025-10-27 13:51 | 显示全部楼层
卫生间真好看
发表于 2025-10-27 14:18 | 显示全部楼层
套内100,建筑面积快130了吧

一个人住,爽翻天了~
您需要登录后才可以回帖 登录 | 加入我们

本版积分规则

Archiver|手机版|小黑屋|Chiphell ( 沪ICP备12027953号-5 )沪公网备310112100042806 上海市互联网违法与不良信息举报中心

GMT+8, 2025-11-30 04:26 , Processed in 0.015049 second(s), 7 queries , Gzip On, Redis On.

Powered by Discuz! X3.5 Licensed

© 2007-2024 Chiphell.com All rights reserved.

快速回复 返回顶部 返回列表