找回密码
 加入我们
搜索
      
楼主: 小姜姜

[案例分享(完工啦)] 一个大叔的养老归宿,杭州拱墅170+55湖景露台房的分享

[复制链接]
发表于 2025-11-28 09:56 | 显示全部楼层
在一片赞美声中来唱唱反调

露台太浪费了!!!户外也就一条小沟,对面又是楼,实在谈不上有啥景观的,自家的小景就很重要了

室内无功无过,配色还行,质感略差,客厅开间局促,总体略显老气
 楼主| 发表于 2025-11-28 10:01 | 显示全部楼层
小楼夜雨 发表于 2025-11-28 09:56
在一片赞美声中来唱唱反调

露台太浪费了!!!户外也就一条小沟,对面又是楼,实在谈不上有啥景观的,自家 ...

主要是因为这个露台买的,杭州这种沿河露台毕竟少。平时还住其他一套340的,等下次发
0dd5a7628cea46c2e0ef1395598460ef.jpg
发表于 2025-11-28 10:02 | 显示全部楼层
这露台咋去?是在门外?
发表于 2025-11-28 10:02 | 显示全部楼层
超喜欢这个色调,我家里现在也是差不多的
发表于 2025-11-28 10:05 | 显示全部楼层
赞赞赞,厉害了,风格很喜欢
 楼主| 发表于 2025-11-28 10:09 | 显示全部楼层
notatallwade 发表于 2025-11-28 10:02
这露台咋去?是在门外?

客厅出
f186f90cc55ca971cb209516a2a3c22c.jpg
发表于 2025-11-28 10:13 | 显示全部楼层
真不错,可以改进一下书房的理线吗?有点煞风景
发表于 2025-11-28 10:16 | 显示全部楼层
大露台舒服,岳父家也有一个大露台,家住2楼,一楼是华润万家
发表于 2025-11-28 10:51 | 显示全部楼层
电脑桌下面的线可以捋一下吗。
发表于 2025-11-28 10:58 | 显示全部楼层
这个露台会有高空抛物的风险吗
发表于 2025-11-28 11:06 | 显示全部楼层
不错不错,这是几层楼哇
 楼主| 发表于 2025-11-28 11:09 | 显示全部楼层
yvesyuan 发表于 2025-11-28 10:58
这个露台会有高空抛物的风险吗

基本没有,这个朝向都是房间
发表于 2025-11-28 11:10 | 显示全部楼层
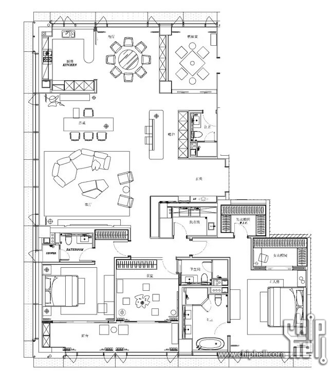
为啥我在平面图上没找到入户门呢?
发表于 2025-11-28 11:30 | 显示全部楼层
大佬我就想问一句,这房子带装修得多少w,我好有个奋斗目标
发表于 2025-11-28 11:31 | 显示全部楼层
小楼夜雨 发表于 2025-11-28 09:56
在一片赞美声中来唱唱反调

露台太浪费了!!!户外也就一条小沟,对面又是楼,实在谈不上有啥景观的,自家 ...

这个好弄,直接买了上就行了。。。
发表于 2025-11-28 11:36 | 显示全部楼层
羡慕豪宅
发表于 2025-11-28 14:05 | 显示全部楼层
微信上面推送了。。。。。。
您需要登录后才可以回帖 登录 | 加入我们

本版积分规则

Archiver|手机版|小黑屋|Chiphell ( 沪ICP备12027953号-5 )沪公网备310112100042806 上海市互联网违法与不良信息举报中心

GMT+8, 2025-11-28 14:18 , Processed in 0.009208 second(s), 6 queries , Gzip On, Redis On.

Powered by Discuz! X3.5 Licensed

© 2007-2024 Chiphell.com All rights reserved.

快速回复 返回顶部 返回列表